Apartamente 2 camere Bucurestii Noi - Straulesti

Apartamente 2 camere Bucurestii Noi - Straulesti

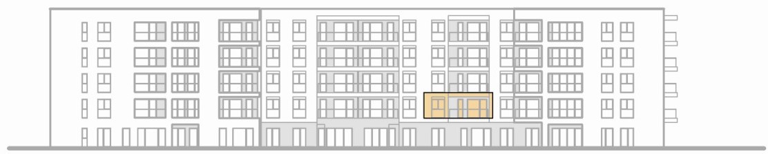
Apartament 2 camere tip L4-C104

Schiță apartament
LIVING23,56 m²
BUCATARIE5,89 m²
DORMITOR 116,82 m²
BAIE 14,56 m²
HOL 13,43 m²
G.S.3,10 m²
Suprafață utilă57,36 m²
TERASA7,82 m²
Suprafață utilă totală65,18 m²
Suprafață construită67,43 m²

Disponibilitate

Bloc Scara Apartament Etaj Status
IV C C104 1 disponibil

Cere o ofertă personalizată

Spune-ne câteva detalii despre ce cauți, iar noi îți pregătim o ofertă adaptată bugetului și preferințelor tale. Un specialist în real estate te va contacta pentru a-ți prezenta cele mai bune opțiuni.

Sună acum 0310.052.150

sau completează formularul pentru apartamentele disponibile și te sunăm noi!

Cerere Ofertă



    Câmpurile marcate cu “*” sunt obligatorii.