Apartamente 3 camere în Pantelimon preț de la 124.000 euro + 21% TVA (150.040 euro TVA inclus)

Apartamente 3 camere în Pantelimon preț de la 124.000 euro + 21% TVA (150.040 euro TVA inclus)

Prețul va fi achitat, în echivalentul RON, calculat la cursul de schimb EUR/RON publicat de Banca Națională a României, valabil la data emiterii facturii fiscale. Prețurile menționate pe site-ul nostru sunt prețuri de pornire pentru fiecare categorie de apartamente, diferă la fiecare tip de apartament și sunt stabilite în funcție de suprafața, etajul, compartimentarea și orientarea cardinală a fiecărui apartament. Dacă vă interesează un anumit tip de apartament și/sau prețul său, nu ezitați să transmiteți o cerere de ofertă sau să vizitați showroom-ul VITALITY EST, Șos. Vergului 18- 22, București, Sector2, in incinta centrului comercial MOBEXPERT Pantalimon pentru mai multe detalii.

Apartament 3 camere tip 4A-T9

Schiță apartament
Vestibul5,10 m²
Hol5,86 m²
Grup sanitar4,08 m²
Dormitor14,04 m²
Living + Dining26,26 m²
Bucătărie5,04 m²
Baie3,81 m²
Dormitor15,33 m²
Suprafață utilă79,52 m²
Balcon8,51 m²
Suprafață utilă totală88,03 m²
Suprafață construită96,81 m²

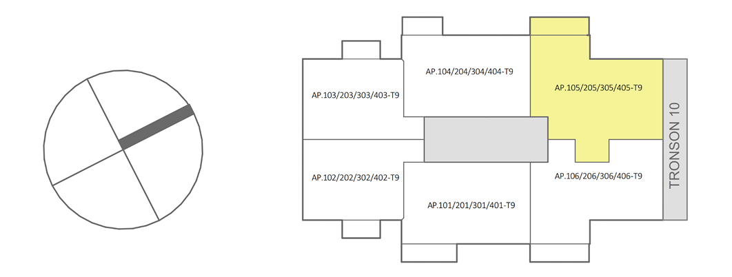
Disponibilitate

Bloc Scara Apartament Etaj Status
Tronson 9 105 1 vândut
Tronson 9 205 2 vândut
Tronson 9 305 3 disponibil
Tronson 9 405 4 disponibil
apartamente

Cere o ofertă personalizată

Spune-ne câteva detalii despre ce cauți, iar noi îți pregătim o ofertă adaptată bugetului și preferințelor tale. Un specialist în real estate te va contacta pentru a-ți prezenta cele mai bune opțiuni.

Sună acum 021.555.6910

sau completează formularul pentru apartamentele disponibile și te sunăm noi!

Cerere Ofertă





    Câmpurile marcate cu “*” sunt obligatorii.